光纤式传感器- 感光类型:可见光
- 探测角度:360°
- 信号传输方式:光信号
- 材质:感光光纤
- 感光阈值:5-8000Lux
- 工作温度:-50~85℃
- 传输最大距离:30m
- 应用:大范围监测
ZQ-ARC-STP紫外光弧光传感器测试
GIS法兰弧光传感器安装
气密性测试
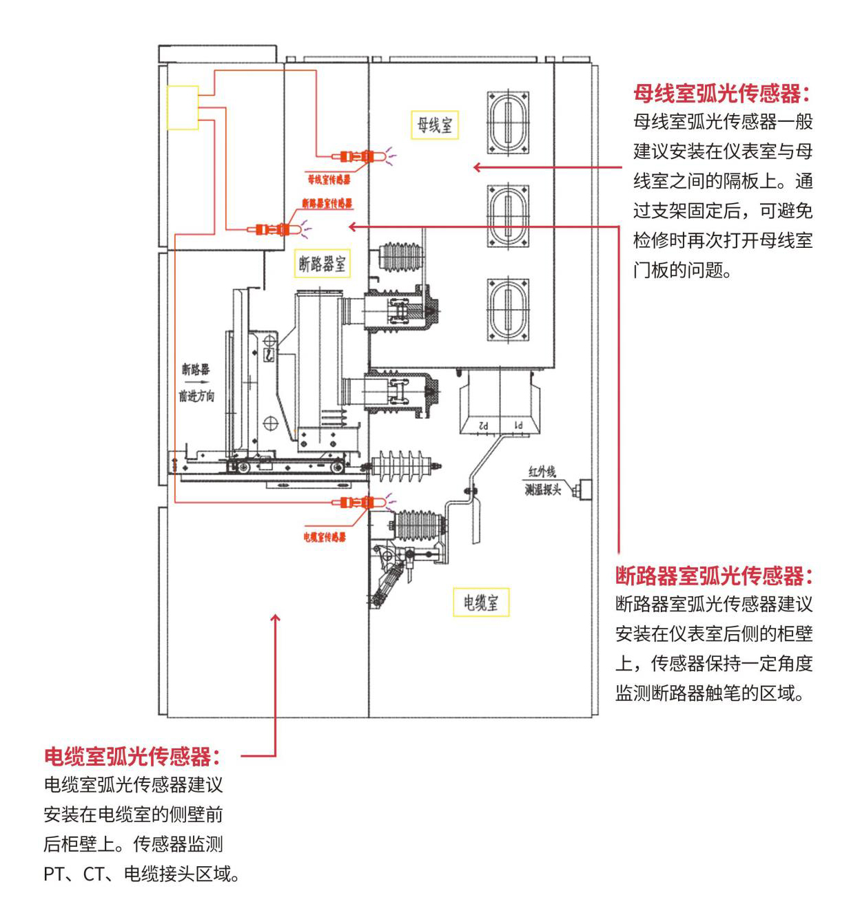
弧光传感器安装位置
母线室弧光传感器安装示意图
断路器室弧光传感器安装示意图
电缆室弧光传感器安装示意图
光纤敷设示意图
现场案例

